Intergenerational Wellness & Innovation Center

Design Problem: Charlottesville lacks inclusive spaces that combine physical therapy with opportunities for intergenerational connection. Many health services feel clinical and disconnected from daily life. The challenge is to design a warm, engaging intergenerational center with an integrated physical therapy clinic that supports healing, movement, and community interaction. Using color theory and thoughtful design, the space should promote wellness, break down generational barriers, and create a sense of belonging for all ages.

Design Concept: Pops of color energize a physical therapy clinic and activity space, fostering intergenerational connection, lifelong learning, and holistic wellness. Vibrant hues like green, orange, red, and blue create a welcoming atmosphere, stimulating engagement and highlighting key areas for therapy, social interaction, and learning. These accents enhance wayfinding, intuitively guiding users through different zones while balancing with neutral tones to prevent overstimulation. Integrated with natural light and textures, they create a dynamic yet calming environment that supports physical and emotional well-being. By strategically weaving color into the design, the space becomes an uplifting hub where all ages come together to heal, grow, and connect.

Site Analysis

Parti: Three Planes of Motion: Transverse, Frontal, Sagittal

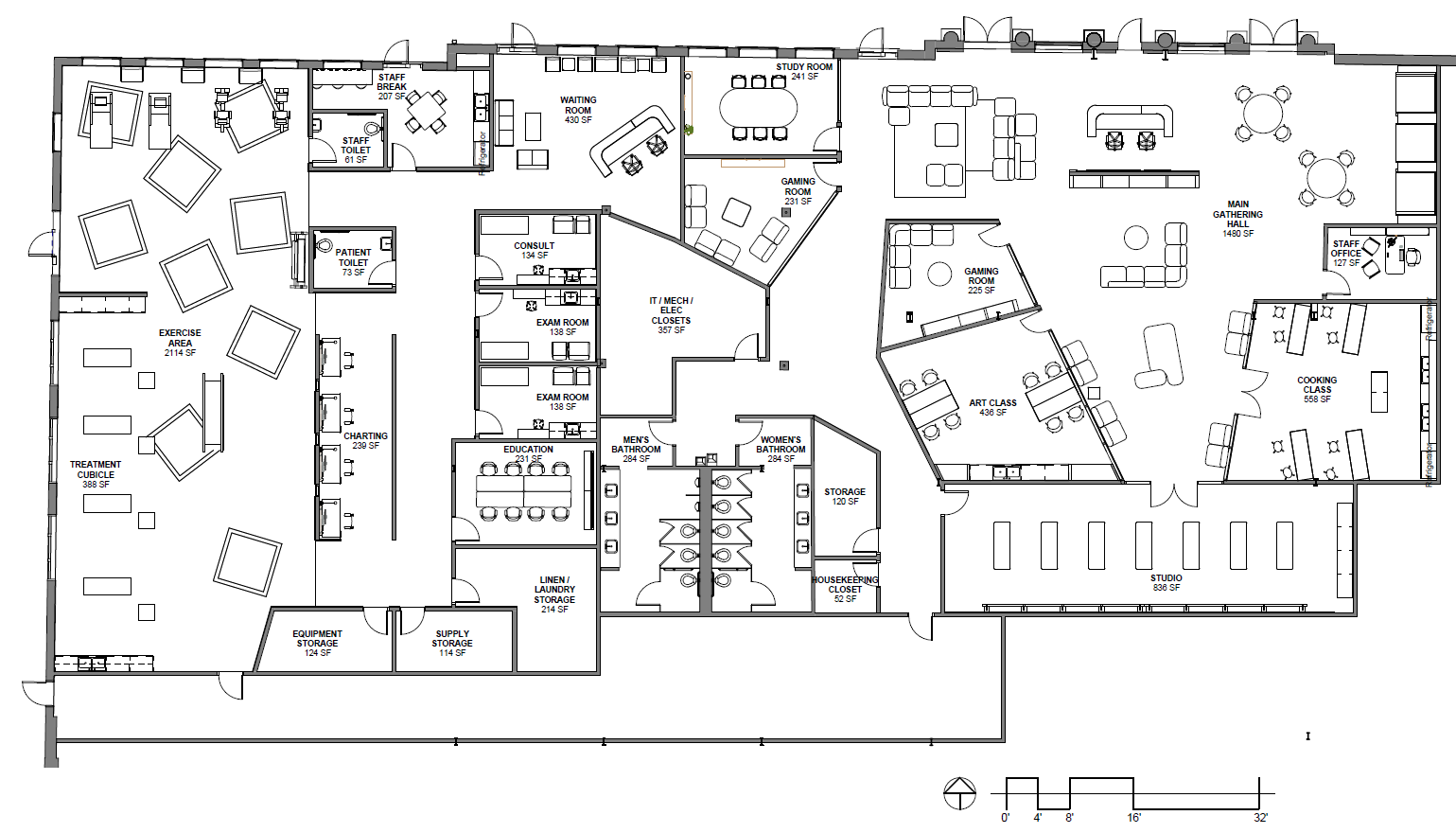
Floor Plan

RCP Plan

Main Gathering Area Reception

Cooking Class

Exam Room Axon

Art Room

Main Gathering Area Lounge

FF&E

Steelcase - Dovetail Pumpkin 8571-453

Steelcase - Remix Concrete Grey RE08

Steelcase - Buzz Sky 5F06

ShawContract - Grain 00200

ShawContract - Cerused 00500

Steelcase - Acacia 2LAT

Elite Garage Floors - Rippin Red 20 ES47

Custom Wallcovering - Vinyl

Steelcase - Blackwood 2536

SW - Polished Concrete 9167

South Section